如何在装修时提前做好网络布线?合肥天铕科技有话说
发布时间:2024-06-23 来源:合肥天铕科技 浏览次数:很多人在家里使用无线网的时候都会抱怨网络不好用,在客厅还是信号满格一进到卧室里信号就一两格了。其实这些问题都是把无线网想的太简单了,认为只要有一个无线路由器就能满足家里的无线网使用了。殊不知,这是自己在装修时由于不了解墙体对无线信号阻挡造成了信号衰减,给自己挖的一个坑。然而这时装修已经完成,只能是默默承受,虽然也有其他的改造办法,但是肯定没有在装修之前把网线提前布好更加完美。
今天作者就带着大家一起来探索一下如何在装修之前做好家里的网络布线,让你家装修完成之后无线信号无缝覆盖、稳定可靠,让你刷剧、吃鸡不卡顿。
一、装修前先报装宽带
现在宽带入户的光纤基本上是从入户的弱电箱里出来,光纤要到电视墙或者是其他位置还需要单独走线。如果装修之后报宽带而装修是没有预留管线,那么宽带的光猫就要放在入户弱电盒子那里,这样不利于路由器的放置和无线信号覆盖。如果要将入户光纤从从入户弱电箱迁到其他位置装修后就要走明线,影响美观。先安装宽带可以在改水电的时候把宽带光纤长度预留好,然后改成暗管不影响整体的美观。另外宽带开通后可以买个网络摄像头,随时监控装修进度和质量,即使不在现场也可以实现实时监工。
入户的弱电箱一般在玄关附近的墙上,有明显的一个铁箱子带锁(锁的安全性不高,有可以随便找个东西就能给捅开),大概位置如下图所示。
一般弱电箱位置
弱电箱的位置
二、装修后报装宽带
如果是准备后装宽带,建议提前规划好自己的网线预留管线,一般建议在 电视柜位置放置路由器,从进户弱电盒位置预留一个到电视位置的网线管,并保留穿线铁丝在PVC管里以方便后面安装宽带的时候引光纤。
三、关于房间内的无线信号覆盖
不要以为有一个无线路由器就可以穿墙覆盖所有的屋子,无线信号要经过测试之后再确认自己的房间是否适合只安装一个无线路由器。如果一个路由器的信号覆盖不全面就要在每个房间内预留网线接口,为以后安装无线AP扩展信号使用。信号测试的简单方法:准备两个手机,一个手机打开机无线热点放在电视柜位置,另一个手机下载“WIFI魔盒“APP,在看干扰的功能里分别在几个卧室、厨房、卫生间位置查看2.4GHz和5.8G信号的强度,在-30db到-40db之间为稳定信号,低于-55dbd则建议增加无线点位(db是无线信号强度单位,显示为负值,负值越大信号越稳定)。尤其是注意5.8Ghz的信号强度。
2.4GHz信号强度
5.8GHz信号强度
如果无线信号低于-55db则需要提前向各个个房间内布网线以方便后续安装AP或者信号放大器,具体布线位置见下图:
网线的设计
墙体面板的设计
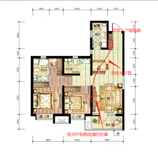
1、红色线路:将光纤从入户弱电箱通过预埋PVC管线迁到指定的位置(一般为电视柜附近,为方便以后使用电视盒子连接光猫)
2、蓝色线路:光纤位置到各个房间各布一根网线,卧室建议放在床对面的墙上,厨房建议放在和插座同一高度的位置,卫生间建议在灯开关附近。防止厨柜等对无线信号的阻挡。
3、红色圆圈和方块位置:要安装的无线面板或者是广大器位置。
4、布管时不要听装修公司说的什么横平竖直、90度直角弯好看,那些都没用,对于网线和电线的管线是以弯度小,易穿线,易维护为主。装修公司有穿线设备并且改线是按长度收费当然会选择越长越好。后续自己维护的时候肯定是要考虑到便捷性。
四、布线中网线的选择
网线的改线建议用6类非屏蔽网线,线标的文字会有标识CAT6E或者CAT6字样。剥开线后中间会有一个十字骨架。当然土豪和网络发烧友可以考虑直接预留光纤接口,无论是千兆光纤还是万兆光纤选择多模的即可。
六类网线主要特征
五、常见材料对无线信号的影响
下表中列出了常见的一些材料对无线信号的影响,衰减值越高对无线的影响越大,信号质量就会越差。
通过上面介绍的布线设计,基本上可以避免装修完成之后家里无线信号不稳定的问题,同时对装修完成之后选择什么样的路由器和信号放大器也可以有全面的帮助。以后的内容中作者将继续为大家整理如何选择家用路由器来让你的无线网络使用体验更好。
声明:本网站发布的内容(图片、视频和文字)以原创、转载和分享网络内容为主,如果涉及侵权请尽快告知,我们将会在第一时间删除。文章观点不代表本网站立场,如需处理请联系客服。电话:151-5512-7885。
本站全力支持关于《中华人民共和国广告法》实施的“极限化违禁词”的相关规定,且已竭力规避使用“违禁词”。故即日起凡本网站任意页面含有极限化“违禁词”介绍的文字或图片,一律非本网站主观意愿并即刻失效,不可用于客户任何行为的参考依据。凡访客访问本网站,均表示认同此条款!反馈邮箱:342426643@qq.com。
最新资讯
- 2024-08-06
- 2024-08-05
- 2024-08-04
- 2024-08-03
- 2024-08-02

